Home
About Us
Portfolio
Clients
Contact Us
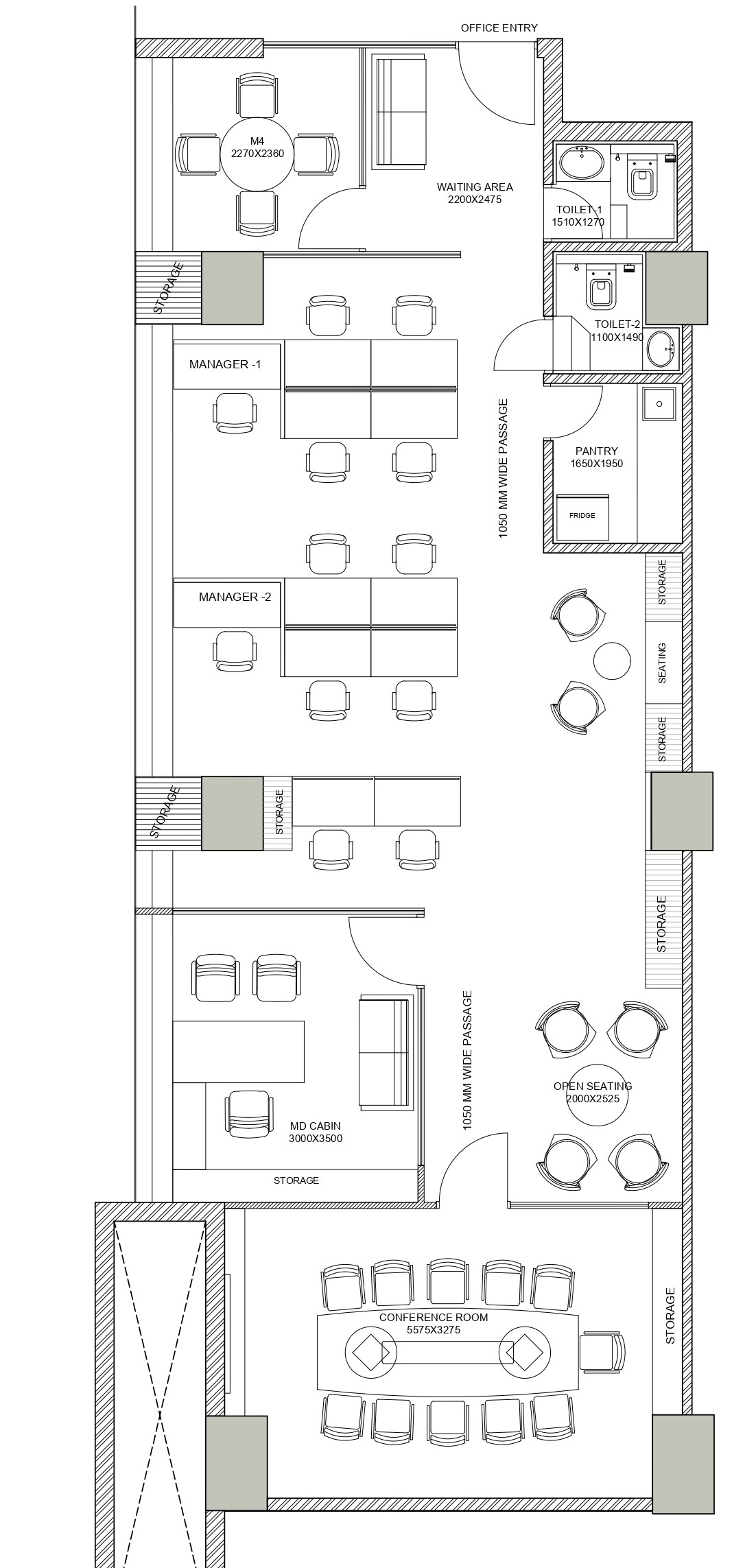
BBL ENERGY V DLF CARPORATE GREEN
Address: SECTOR-74, GURGAON
Back to Portfolio
×
❮
❯
Call Now