Home
About Us
Portfolio
Clients
Contact Us
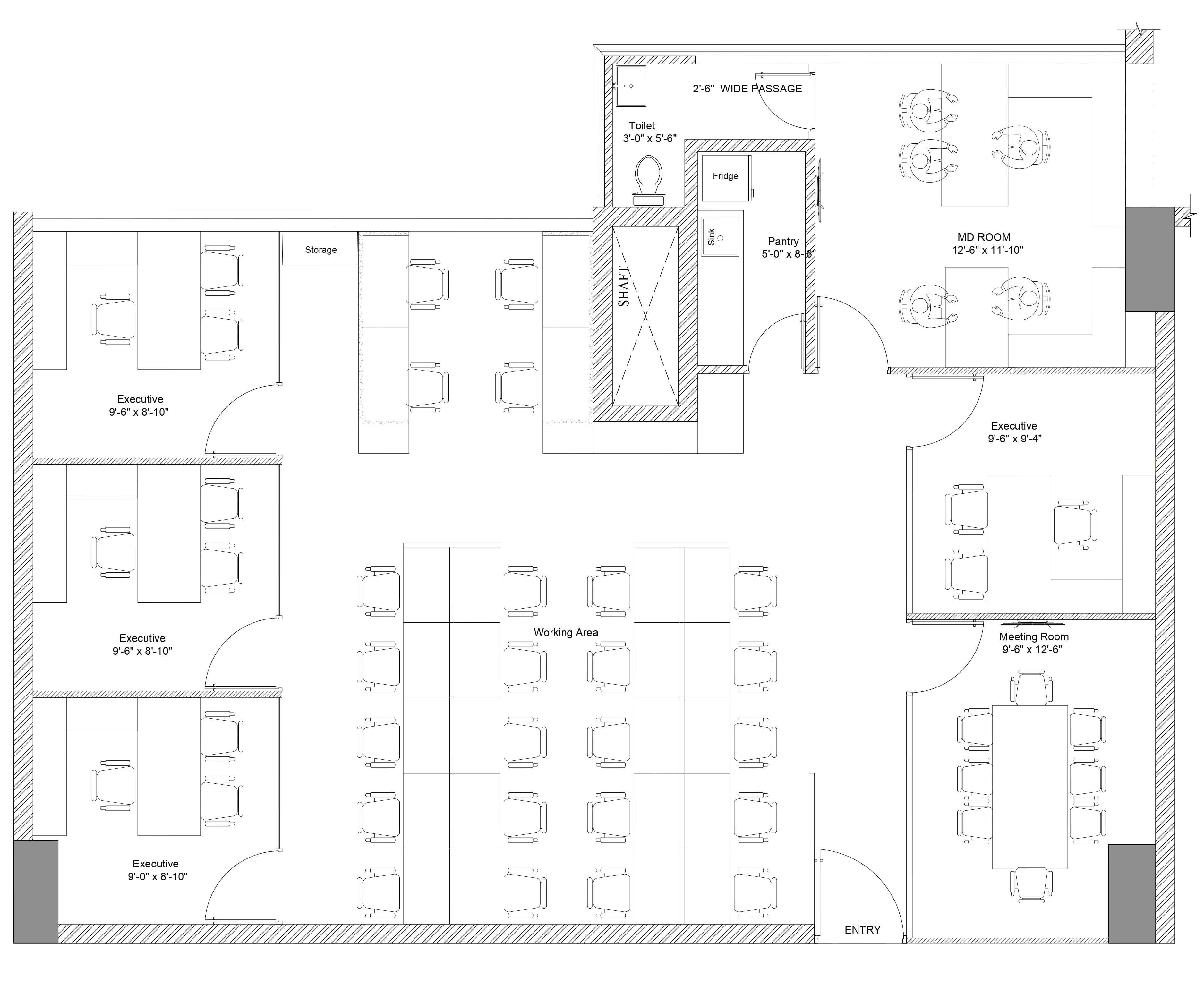
EXPERION MILESTONE
Address: SECTOR 32, GURGAON
Back to Portfolio
×
❮
❯
Call Now