Home
About Us
Portfolio
Clients
Contact Us
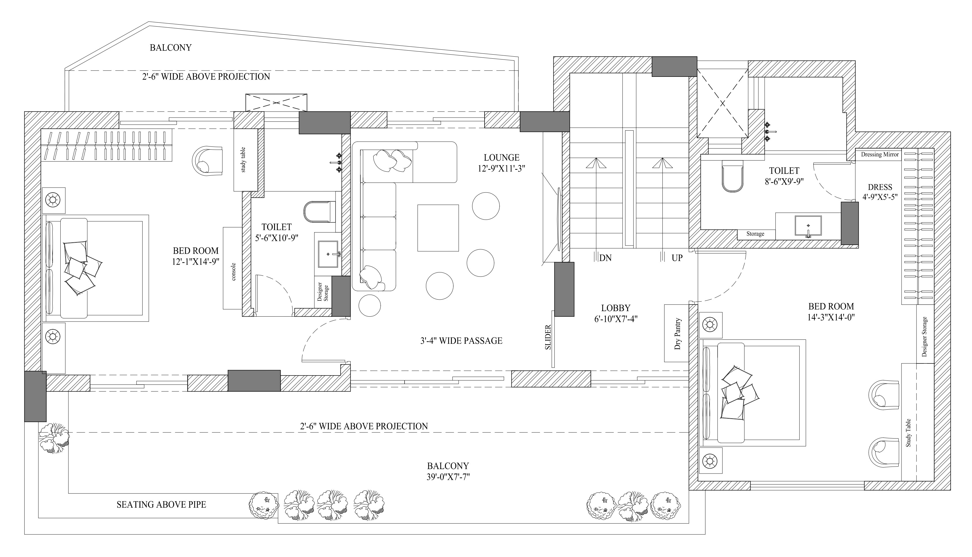
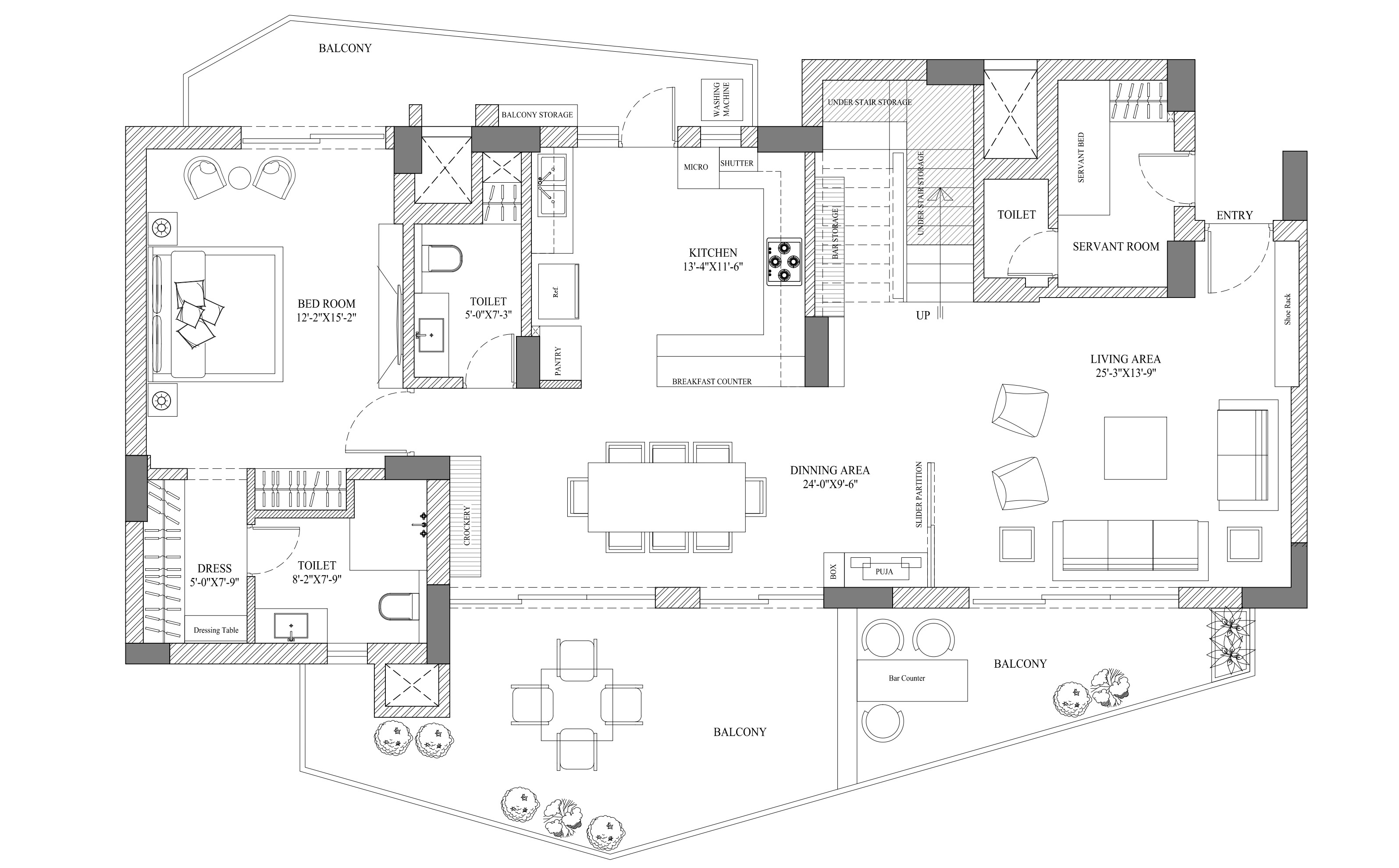
ANSAL G SEC 90(PENTHOUSE SECTOR-90)
Address: Sector 90, Gurgaon
Back to Portfolio
×
❮
❯
Call Now